Host & Stay - Badger Cottage
Preview only — see all hotel photos
See all 21 photos 1 /
21
Best options for your travel dates
在地图上显示酒店
Host & Stay - Badger Cottage
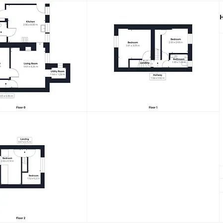
Host & Stay - Badger Cottage距离火烈鸟乐园度假村大约5公里,设有2间卧室和一个凉亭. Host & Stay - Badger Cottage的所有房间均设有露台,沙发 和咖啡机/煮茶器.
从住所到皮克林中心大约1公里. 该住所距离Thornton le Dale Motor Museum大概4.6公里. 附近还有Potter Hill Fish Shop.这个餐厅提供英国佳肴.
Host & Stay - Badger Cottage有2间浴室.它们设有步入式淋浴间 和分开的洗手间.
客人可以在设施齐全的厨房做饭. 别墅位于距离达翰姆(mme-蒂斯瓦利)机场大约85公里的地方. 徒步旅行 和骑自行车运动可供客人使用;您在留宿期间享受更多乐趣.
更多 +
收起 -
请等以下,我们给您检查可提供的客房.
搜寻酒店
设施
主要设施
- 无线网络连接
- 方便儿童使用
客房设施
概况:
- WiFi
餐饮服务:
- 电热水壶
- 厨房器具
- 户外用餐区
客房设施:
- 休息区
- 内庭院
- 茶具和咖啡机
- 餐桌
- 熨烫设备
- 洗衣机
- 免费洗浴用品
- 婴儿床/ 婴儿摇篮
- 铺有地毯的地板
政策
入住时间: 16:00至22:00
离店时间: 09:00至10:00
地图
当地名胜古迹
机场
- 达翰姆(mme-蒂斯瓦利机场) (83公里)